Loading...

Shop House Special

11m x 24m 11m x 24m

Land Size

9m x 16m 9m x 16m

House Size

The economical Mean Chey Residence Shophouse options are highly dynamic, making it ideal for both lifestyle and commercial purposes. Offering precedent features such as a sky light as well as an elevator option, the luxurious yet versatile design is a leader in the market. For either home life or commercial usage, the Shop House and Shop House Special will serve the customers needs.

Watch Video

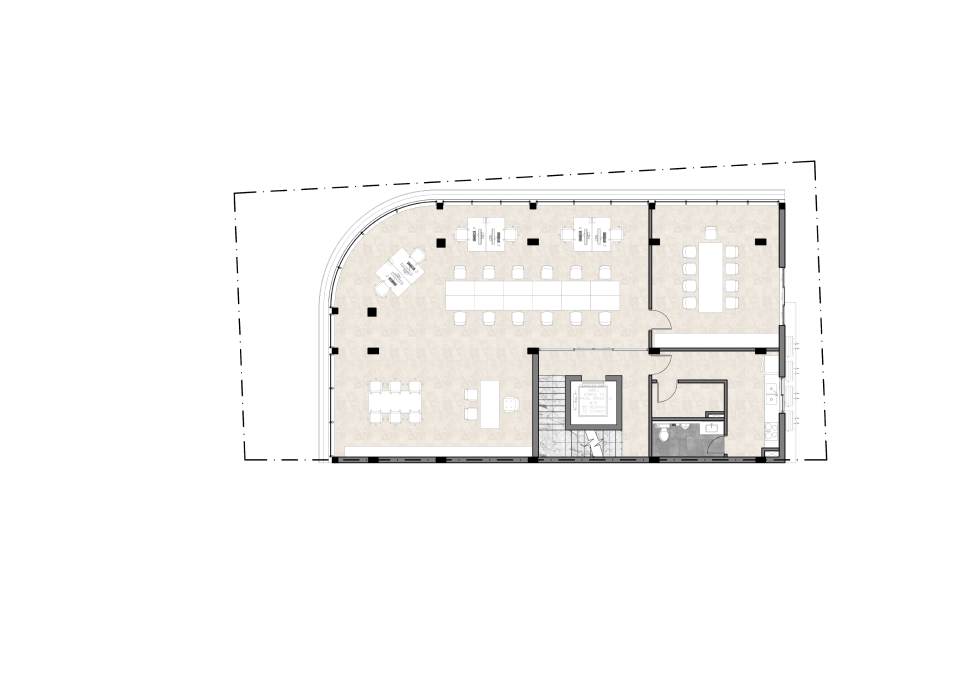
Plan

Ground Floor
First Floor
Second Floor
Third Floor
Forth Floor

Feature

Feature

Office
Office
Meeting Room
Meeting Room
Manager Room
Manager Room
Office
Office