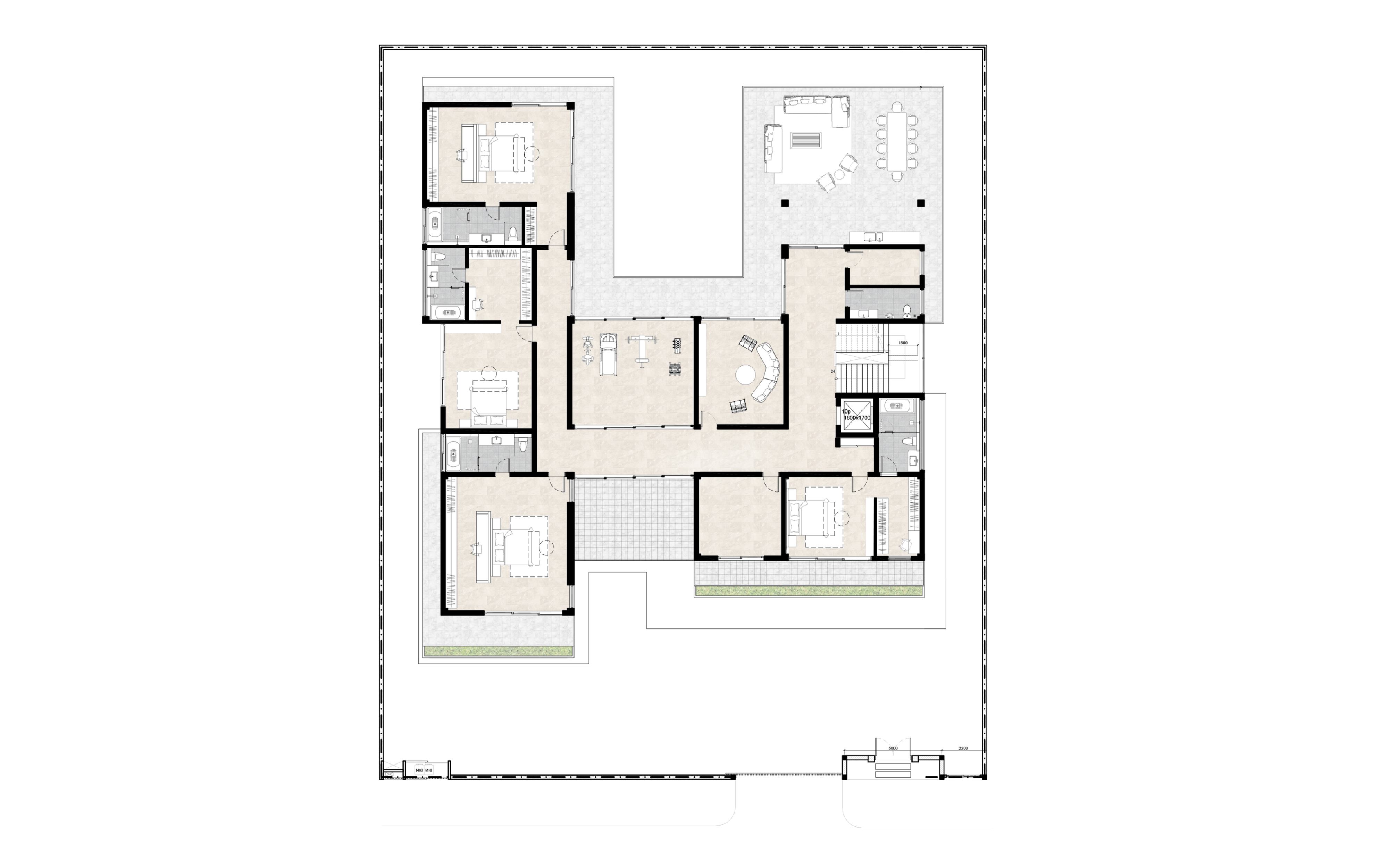
31m/32.5m x 37.5m
Land Size
25.45m x 26m
House Size
Situated in the heart of Mean Chey Residences, The King Situated in the heart of Mean Chey Residences, the majestic King Villa is the pride and flagship model/creation/design of our development. The King Villa encompasses Western concepts in a spacious design featuring luxury amenities such as an entertainment room, gym, prayer room, and salon. It features adaptability where the grand living area can cater to events and ceremonies, as well as a large outdoor area for gatherings. Designed with the elderly and young in mind, there are bedrooms on the ground floor and elevator access to all floors. Staff quarters with ensuite bathrooms as well as separate dry and wet kitchens provide precious family moments. The King Villa is ideal for large families that seek luxury and high quality of life.ng Villa is the pride and flagship concept of our development. The King Villa encompasses modern Western design in a lavishly spacious abode featuring 8 bedrooms. The ultramodern contemporary home is equipped with high-quality renowned luxury furnishing and latest technology to enhance quality of life for the whole family. With an impeccable view of our vast Mean Chey garden, the villa’s attractive features are further accentuated, which consists of the grand living room, outdoor terrace, car park and more. The King Villa is impeccably tailored to large families with many household help.